Vách ngăn TS 1.100 được sử dụng làm vách ngăn chia phòng. Vách có độ kín khít gần như tuyệt đối, tất cả các điểm tiếp xúc giữa các thanh profile đều được ghép thêm các gioăng đệm bằng cao su đảm bảo không có một khe hở nào để nước có thể xâm nhập vào bên trong. Phụ kiện đồng bộ được sản xuất từ các hợp kim không gỉ, giá trị thẩm mỹ, tiện ích cao. Nhôm Việt Pháp được chế tạo tỉ mỉ tới từng chi tiết nên rất an toàn cho người sử dụng
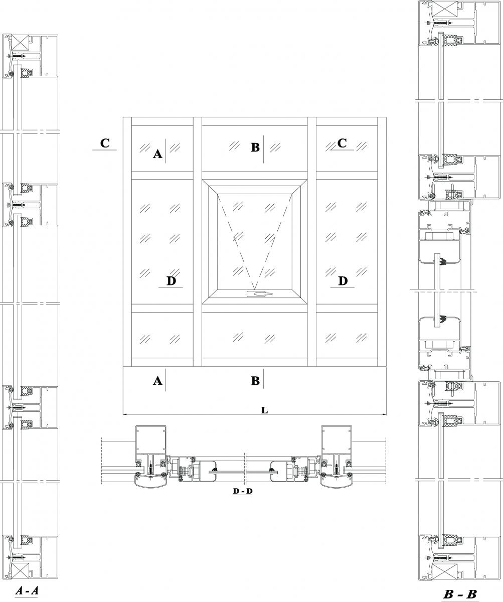
SƠ ĐỒ LẮP GHÉP


Sơ đồ lắp ghép
Mặt cắt